About the client
The Silk Museum within Paradise Mill in Macclesfield, Cheshire tells the story of Macclesfield’s world-renowned silk industry. The museum has an internationally significant collection of silk textiles and machinery with a pattern book archive of nearly 1,000 volumes. It also displays the ancient Egyptian artefacts collected by Macclesfield silk heiress, Marianne Brocklehurst.
The Paradise Mill is a beautifully preserved working silk mill, with 26 restored jacquard looms. The mill was built in 1860 with architecture from that period.
The Requirement
With a huge and ever growing inventory of items, and a collection storage area that was creaking at the seams, the team at the museum realised they needed to review their stores.
Together with capacity issues, the museum’s archive collection was becoming hard to manage and track. This affected recovery times and tracking down items for research.
As such, during 2024 the team at the museum decided that they needed a solution, and contacted Rackline’s team to their support.
The Solution
Rackline visited the site, and undertook a thorough audit. This involved meeting and talking to the collections staff and examining the collection storage spaces. After this, Rackline’s teams had a thorough understanding of the existing collection storage, the items they wished to store, and the sizes and shapes of the spaces in which they wanted to house the new storage areas.
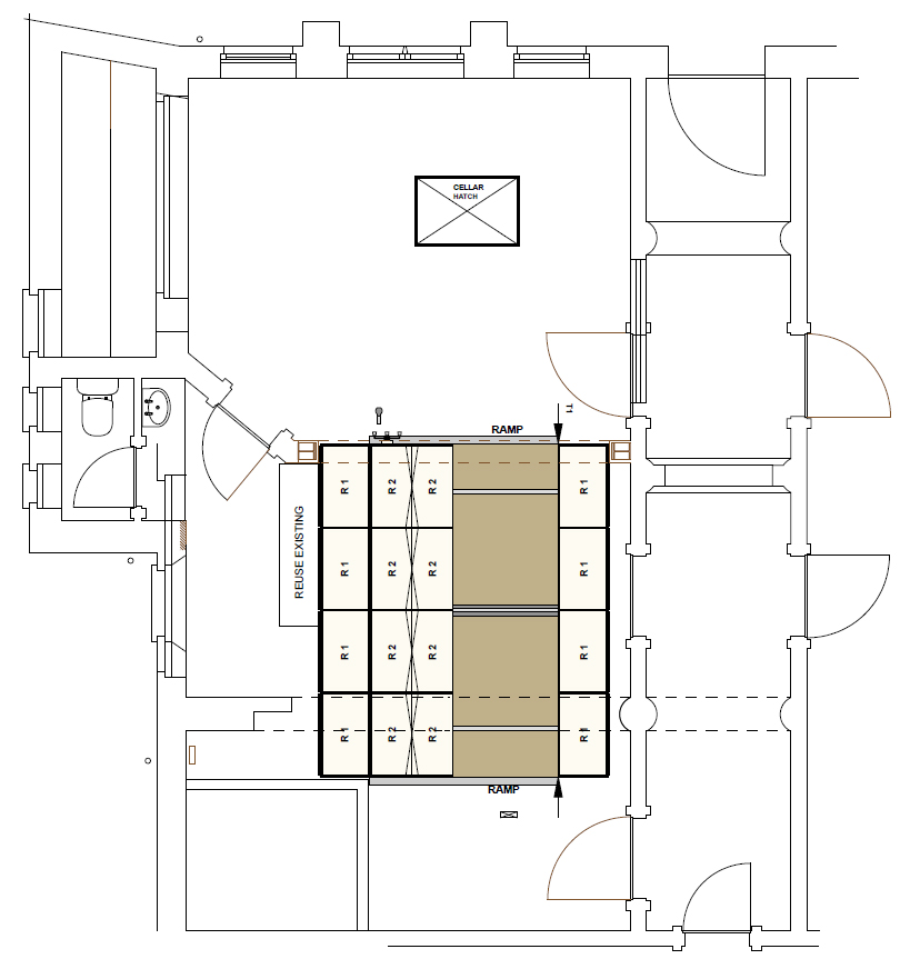
After examining the options, Rackline produced a number of layout ideas and proposed a number of different solutions to the museum team. After a few tweaks, it was decided that a roller racking solution would provide them with the best yield from the space, and provide them with a high capacity, organised archive for their collection storage areas.
The final agreed solution used Rackline’s, proven high capacity prospan shelving system fixed to Rackline’s Multitrak mobile bases. The bases provided around 70% more space than a traditional static shelving solution. The system was designed around the extraordinarily high Victorian mill ceiling, with units measuring over 3m in height. These were built with 12 levels per bay, with the ends and tops clad in steel. When closed the bays form an encased, safe storage space for the often delicate and light sensitive items.
Utilising this extra height the new roller racking provides 192 additional linear meters of storage capacity for the Museum.
The Result
The new storage provides a huge capacity boost over their old stores. The enclosed space helps to keep the collection away from bright light and other contaminants. Finally the new system provides quick access to the collection, and makes it easy to catalogue items, aiding both deposit and retrieval.
Find Out More
Rackline have been supporting the Museum sector for over 40 years, with some of the biggest (and smallest) museums and groups turning to our teams for support. If you are looking to update your archive, want to understand how you can maximise your space, or better protect your valuable collection then get in touch.
